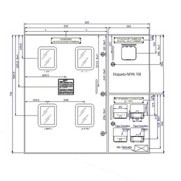
Características técnicas del armario
- Capacidad: Alojamiento para tres (3) o cuatro (4) medidores trifásicos clase 200.
- Normativa aplicable: Cumplimiento total de la AE308 de Enel Colombia.
- Material: Lámina de acero galvanizado calibre 16 (cuerpo) y calibre 14 (puerta), garantizando resistencia mecánica y larga vida útil.
- Acabado: Recubrimiento en pintura electrostática poliéster color gris RAL 7035 con tratamiento previo de desengrase y fosfatizado.
- Ventanas de inspección: Una por cada compartimento, fabricadas en policarbonato transparente con resistencia al impacto, para permitir la visualización de medidores sin necesidad de abrir la puerta.
- Puertas independientes: Una puerta para cada medidor, con cerraduras tipo bastón antivandálicas, resistentes a la manipulación no autorizada.
- Seccionadores internos: Cada acometida cuenta con interruptor termo magnético de protección, permitiendo la desconexión individual de cada medidor.
- Barras de puesta a tierra y neutro: Fabricadas en cobre electrolítico, con aisladores y tornillería de conexión.
- Perforaciones posteriores y laterales: Para facilitar el ingreso y salida de cables, compatibles con canalización en tubería EMT o conduit PVC.
- Sistema de ventilación pasiva: Ranuras que garantizan la disipación del calor sin permitir la entrada de agua o insectos.
- Espacio de conexión y acometida accesible: Diseño modular que facilita la instalación eléctrica y las conexiones de acometida según lo requerido por Enel.
Opciones de instalación
Ofrecemos dos alternativas de instalación:
- Montaje superficial: El armario se ancla sobre una pared existente mediante pernos de expansión.
- Montaje empotrado: El armario se embebe en muro, dejando al ras la superficie frontal, ideal para fachadas de conjuntos o edificios residenciales.
Ambas opciones incluyen instalación completa, puesta a tierra reglamentaria, etiquetado según norma, y pruebas funcionales.
Beneficios del producto
✅ Cumplimiento normativo total: Asegura la aprobación de Enel en inspecciones y evita reprocesos.
✅ Durabilidad y resistencia: Ideal para exteriores o zonas comunes expuestas.
✅ Facilidad de mantenimiento: Conexiones ordenadas, acceso rápido a interruptores y lectura sin abrir puertas.
✅ Seguridad eléctrica: Equipado con protecciones individuales y barra de puesta a tierra.
✅ Versatilidad de montaje: Superficial o empotrado según necesidad del proyecto.
Aplicaciones típicas
- Conjuntos residenciales multifamiliares
- Edificios comerciales de pequeño y mediano tamaño
- Agrupación de suministros trifásicos para locales o bodegas
- Proyectos de formalización o legalización eléctrica
¿Por qué elegirnos?
Contamos con experiencia comprobada en instalaciones eléctricas residenciales y comerciales, garantizando cumplimiento con el RETIE, la ET906 y demás normativas vigentes. Nuestro personal técnico está calificado para realizar la instalación conforme a lo exigido por los operadores de red, entregando productos listos para la inspección y conexión.









